Newbie here
Moderators: Aaronw, kendale, John Sayers
-
5forfighting
- Posts: 14
- Joined: Sat Jan 10, 2009 12:19 am
- Location: Kansas, United States
Newbie here
I apologize if this runs long, as I know I can be a bit "wordy". I'm a self-taught musician (i.e. I can't read music and primarily play punk/indy rock). Obviously, I'm not exactly a technical minded guy! I have a small, single car garage that has been (roughly) converted into a room that I use for a rehearsal space. I'm getting ready to finish it in properly and was preparing to do what I always do and just jump in and get started. However, as I have a tendency to suffer from "buyer's remorse" (such as spending $3,000 on an Akai digital 24 track console, and then wishing I had gone with an entirely different setup), I decided to do some research first. I've been reading this site for a few days and I have truly never felt more inferior or out of my depth in my entire life... I'm amazed at the wealth of information here!
Now that that's out of the way, here's my situation...
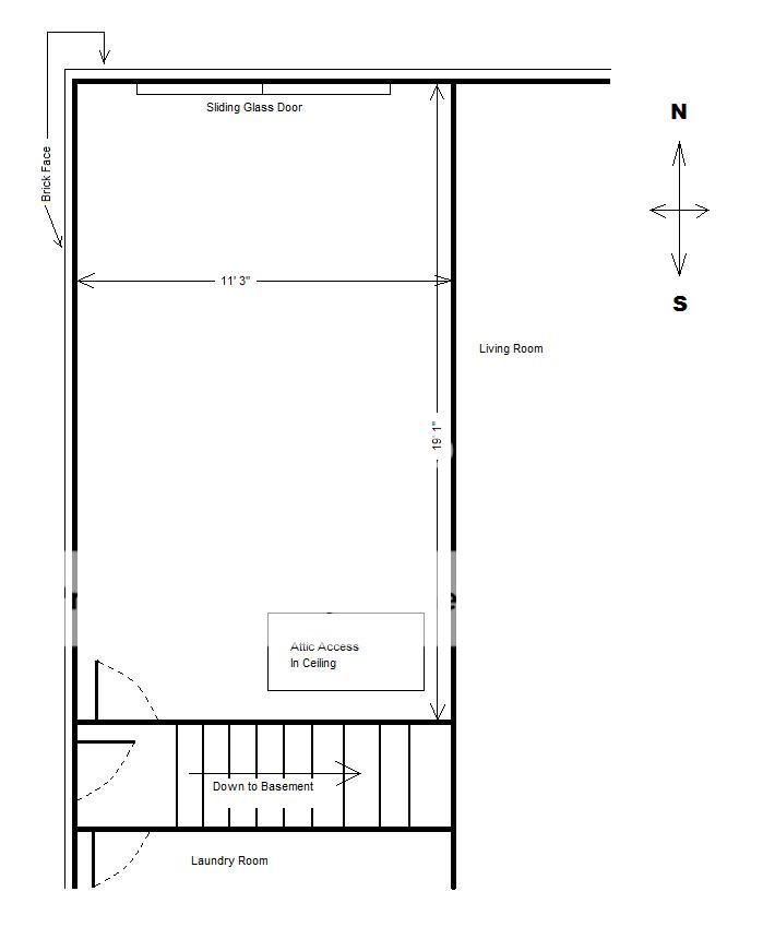
My room is 135 inches (11'3") wide (North and South walls), 229 inches (19'1") long (East and West walls), with the ceiling being 118 inches (9'10") high. It has a cement floor, a drywall ceiling, and all of the walls are approximately 5 inch thick cement, with the two exterior walls (North and West) having brick on the outside. In the middle of the North wall, there is a sliding glass door that measures 95 inches wide, by 80 inches high. On the West end of the South wall, there is a door measuring 78 inches high, by 31 inches wide. In the Southeast corner of the ceiling, running along the South wall, there is a panel measuring 22 inches by 54 inches allowing access to the attic. The furnace and AC ducts run along the basement ceiling, with one vent coming into the studio through a cinder block wall at ground level. I believe most of the noise transfer is through the ceiling, the vent, the South door (which I plan to replace with a more solid door), and the sliding glass door (which I plan to either replace or wall up).
The music can be heard quite clearly throughout the house, as well as outside and by my neighbors. Fortunately, I have a very understanding wife and neighbors who don't mind it. However, I would like to sound proof the room as much as humanly possible to allow playing later at night, as well as find a way to provide adequate isolation for recording, and keeping as much floor space as possible. Ideally, I would like to put a control room at the South end, with two or three isolation chambers (for vocals/amplifiers) at the North end, but that wouldn't leave adequate floor space for live rehearsals. (In the old days, we'd just set up a 4-track with extra long cables running all over the house, and each member of the band would barricade themselves in a different room with a microphone. However, that method doesn't lend itself well to some musicians that I've played with that can't play well in isolation without visual cues.) Given the need for keeping some room for live rehearsal, I think I'm probably going to have to just settle for building a control room at the South end, leaving the rest of the room open, and then trying to isolate the drums with drum shields or something for recording.
Anyway, here are my specific questions:
1. I've noticed in various floor plans that I've seen here that the control rooms seem to be the largest rooms in the studios, and tend to be quite long from the perspective of the person running the board looking forward into the tracking room. Is this for comfort, accoustics, or both? Is it possible to have a good listening environment in a small space, leaving a larger space for tracking?
2. I've also noticed that several people appear to have their reference monitors mounted in the walls. Is there a specific benefit to this?
3. I had planned on replacing the carpet with new carpet, and then covering all of the walls and ceiling with foam to deaden the room, making it easier to hear everthing during rehearsals (cymbals can be so irritating). However, I know that that isn't a very popular idea with most people. Would it be better to put in wood floors and strategically placed dampers and bass traps, or will that leave me with the same problem I have with noise?
4. I had intended to install Pro Co wall plates, allowing me to plug mics directly in from the live room without having to leave openings for cables. Is there a better way of doing this, perhaps using a snake?
If anyone can provide assistance, additional ideas, or point out threads I may have missed that already have this information, I'd greatly appreciate it. I've already learned so much by reading through this site, although so much of it is over my head, and I sometimes have difficulty applying certain information to my specific environment.
Now that that's out of the way, here's my situation...
My room is 135 inches (11'3") wide (North and South walls), 229 inches (19'1") long (East and West walls), with the ceiling being 118 inches (9'10") high. It has a cement floor, a drywall ceiling, and all of the walls are approximately 5 inch thick cement, with the two exterior walls (North and West) having brick on the outside. In the middle of the North wall, there is a sliding glass door that measures 95 inches wide, by 80 inches high. On the West end of the South wall, there is a door measuring 78 inches high, by 31 inches wide. In the Southeast corner of the ceiling, running along the South wall, there is a panel measuring 22 inches by 54 inches allowing access to the attic. The furnace and AC ducts run along the basement ceiling, with one vent coming into the studio through a cinder block wall at ground level. I believe most of the noise transfer is through the ceiling, the vent, the South door (which I plan to replace with a more solid door), and the sliding glass door (which I plan to either replace or wall up).
The music can be heard quite clearly throughout the house, as well as outside and by my neighbors. Fortunately, I have a very understanding wife and neighbors who don't mind it. However, I would like to sound proof the room as much as humanly possible to allow playing later at night, as well as find a way to provide adequate isolation for recording, and keeping as much floor space as possible. Ideally, I would like to put a control room at the South end, with two or three isolation chambers (for vocals/amplifiers) at the North end, but that wouldn't leave adequate floor space for live rehearsals. (In the old days, we'd just set up a 4-track with extra long cables running all over the house, and each member of the band would barricade themselves in a different room with a microphone. However, that method doesn't lend itself well to some musicians that I've played with that can't play well in isolation without visual cues.) Given the need for keeping some room for live rehearsal, I think I'm probably going to have to just settle for building a control room at the South end, leaving the rest of the room open, and then trying to isolate the drums with drum shields or something for recording.
Anyway, here are my specific questions:
1. I've noticed in various floor plans that I've seen here that the control rooms seem to be the largest rooms in the studios, and tend to be quite long from the perspective of the person running the board looking forward into the tracking room. Is this for comfort, accoustics, or both? Is it possible to have a good listening environment in a small space, leaving a larger space for tracking?
2. I've also noticed that several people appear to have their reference monitors mounted in the walls. Is there a specific benefit to this?
3. I had planned on replacing the carpet with new carpet, and then covering all of the walls and ceiling with foam to deaden the room, making it easier to hear everthing during rehearsals (cymbals can be so irritating). However, I know that that isn't a very popular idea with most people. Would it be better to put in wood floors and strategically placed dampers and bass traps, or will that leave me with the same problem I have with noise?
4. I had intended to install Pro Co wall plates, allowing me to plug mics directly in from the live room without having to leave openings for cables. Is there a better way of doing this, perhaps using a snake?
If anyone can provide assistance, additional ideas, or point out threads I may have missed that already have this information, I'd greatly appreciate it. I've already learned so much by reading through this site, although so much of it is over my head, and I sometimes have difficulty applying certain information to my specific environment.
-
Soundman2020
- Site Admin
- Posts: 11938
- Joined: Thu Aug 21, 2008 10:17 am
- Location: Santiago, Chile
- Contact:
Re: Newbie here
Hi "5forfighting", and welcome! Do you have a name that I could call you by? I'm not much of a one for calling people "5forfighting"!!! 
I'm very short on time right now, and I'll try to answer in more detail later (unless someone else beats me to it), but basically:


Seriously, dump the carpet, keep your floor live, install all the bass trapping you can find, and treat just what needs to be treated after that. Look at Ethan's web site (RealTraps.com) for some great advice.
If you want to isolate your room, that's a whole different ball game! If so, then do not start treating it yet, as you'll have to rip of all the treatment to isolate it!
More later, but in the meantime keep on researching on this forum....
- Stuart -
PS. Edited to add: Make a SkethUp model of your room, detailed and accurate, and post it here, or post a link to it if it ends up too big. Or post photos and rough hand-drawn sketch. It's hard to imagine your space just from reading text! At a rough guess, for isolation, I'd say your ceiling will have to come off and be replaced by a proper two-leaf system, which will probably include your walls too.... but post the SketchUp, and take some real measurements with a sound level meter....
I'm very short on time right now, and I'll try to answer in more detail later (unless someone else beats me to it), but basically:
The answer is "yes"! In other words, it depends on what you want to do. But if you don't have a few hundred thousand dollars on hand, then basically you have to live with what you have. Make whatever room you need, bigger, but realizing that you will be sacrificing something in the smaller room.1. I've noticed in various floor plans that I've seen here that the control rooms seem to be the largest rooms in the studios, and tend to be quite long from the perspective of the person running the board looking forward into the tracking room. Is this for comfort, accoustics, or both?
Yes, but with caveats: NO small room is good: the smaller it is, the worse it gets, since your modes get out of hand. But once again, you have to live with what you've got. After you make a million dollars on your first album, you can buy a bigger place and build huge rooms!Is it possible to have a good listening environment in a small space, leaving a larger space for tracking?
Yes! Many reasons, but basically it means the speaker is firing into a half-space, emulating an infinite baffle to a certain extent, so there are no reflections coming around the sides or off the wall. It also improves the bass response greatly, so ig tightens up your bottom end. But it does mean you need lots more absorption on the rear wall.2. I've also noticed that several people appear to have their reference monitors mounted in the walls. Is there a specific benefit to this?
Bingo! Repeat after me: "Carpet is bad. Dead room is bad. Foam is questionable". Write it out 100 times, and take it to the headmaster's office...3. I had planned on replacing the carpet with new carpet, and then covering all of the walls and ceiling with foam to deaden the room, making it easier to hear everthing during rehearsals (cymbals can be so irritating). However, I know that that isn't a very popular idea with most people.
Seriously, dump the carpet, keep your floor live, install all the bass trapping you can find, and treat just what needs to be treated after that. Look at Ethan's web site (RealTraps.com) for some great advice.
Don't confuse "treatment" with "isolation". Two different things. Treatment inside your room will not stop sound from going out. You treat a room by absorbing sound, or diffusing it. You isolate a room by reflecting the sound at a solid, hard, massive boundary, so that it cannot get out, and stays inside the room. Two different concepts, that are often confused. Isolation does not treat (and usually makes the room sound worse!). Treatment does not isolate (and hopefully makes the room sound better).Would it be better to put in wood floors and strategically placed dampers and bass traps, or will that leave me with the same problem I have with noise?
If you want to isolate your room, that's a whole different ball game! If so, then do not start treating it yet, as you'll have to rip of all the treatment to isolate it!
More later, but in the meantime keep on researching on this forum....
- Stuart -
PS. Edited to add: Make a SkethUp model of your room, detailed and accurate, and post it here, or post a link to it if it ends up too big. Or post photos and rough hand-drawn sketch. It's hard to imagine your space just from reading text! At a rough guess, for isolation, I'd say your ceiling will have to come off and be replaced by a proper two-leaf system, which will probably include your walls too.... but post the SketchUp, and take some real measurements with a sound level meter....
-
5forfighting
- Posts: 14
- Joined: Sat Jan 10, 2009 12:19 am
- Location: Kansas, United States
Re: Newbie here
I haven't yet figured out the Sketchup thing yet, but here's a rough idea of the layout I did in Paint (Not to scale):

This is basically a rough idea of the layout I had in mind:

I'm not exactly sure what you mean by "Two Leaf System" for the ceiling. I'm doing some research here to see how I can seperate the ceiling in the live room from that in the control room. I'm also trying to figure out if I'll need risers for the drums and amps, or if the cement foundation with seperate wood floors for each room will suffice. I'm mainly focussing on isolation to get the room built, and then I'll focus on accoustic treatment for sound quality. I just need to figure out what layout will work best for my needs before I start really designing and building... I'd hate to have to tear down walls after deciding that my plan won't work! I'll be doing all of the work myself, with the exception of the electrical. Everything seemed so easy until I started reading this site and found out how much I don't know!

This is basically a rough idea of the layout I had in mind:

I'm not exactly sure what you mean by "Two Leaf System" for the ceiling. I'm doing some research here to see how I can seperate the ceiling in the live room from that in the control room. I'm also trying to figure out if I'll need risers for the drums and amps, or if the cement foundation with seperate wood floors for each room will suffice. I'm mainly focussing on isolation to get the room built, and then I'll focus on accoustic treatment for sound quality. I just need to figure out what layout will work best for my needs before I start really designing and building... I'd hate to have to tear down walls after deciding that my plan won't work! I'll be doing all of the work myself, with the exception of the electrical. Everything seemed so easy until I started reading this site and found out how much I don't know!
-
Soundman2020
- Site Admin
- Posts: 11938
- Joined: Thu Aug 21, 2008 10:17 am
- Location: Santiago, Chile
- Contact:
Re: Newbie here
You can say that again! I've been here for months now, and I'm still learning. I thought I would be building already by now, but once I realized what a total acoustic dunce I was, I decided to wait until I really understand what I'm doing...Everything seemed so easy until I started reading this site and found out how much I don't know!
Try using the "search" feature on this forum, for "two-leaf system". I'll bet you find more than you ever knew existed on how to build a studio correctly!I'm not exactly sure what you mean by "Two Leaf System" for the ceiling
To summarize: Two-leaf is the basis of how to do it right. Don't pick up a hammer until you thoroughly understand the concept of two-leaf and three-leaf construction. I almost made that mistake.
Basically, "two-leaf" means that between you in your control room, and anywhere else around you (such as the live room, or the room next door, or the room above you, or the outside world) there are exactly two "leaves" of mass, separated by an air-gap at least a couple of inches wide, and filled with rock wool or fiberglass. A "leaf" is made up of one or more layers of something large, flat, solid, and massive, such as concrete, brick, sheetrock, MDF, etc. A normal stud wall is a two-leaf wall, because it has MASS on one side (a sheet of drywall), then an AIR-GAP (between the studs) then more MASS on the other side (another sheet of drywall). Mass-Air-Mass, or "MAM". More correctly called "Mass-Spring-Mass" (MSM) because of the principle of physics on which it is based.
Of course, you already know that a normal stud wall is a lousy isolator, but that is for another reason: coupling. The studs inside the wall directly "couple" the sheetrock on each side, so any sound on one side of the wall makes the sheetrock vibrate, which makes the studs vibrate, which makes the sheeetrock on the other side vibrate. So what you need in a studio MSM wall is to "de-couple" the sides. There are several ways of doing that, but the best is to use two sets of studs, instead of one set. So you have two frames that are separated by an air gap, and you put sheetrock on the outside of each frame, and fill the air space between with fibreglass. Presto! You have a good MSM wall. If you need to make it better (as you certainly will do), then you put another layer of sheet directly rock on top of the layers that you already have, so now you have two layers of sheetrock on each side, but it is still MSM, since the two layers of the first "M" act together as if they were one thick layers, since they are directly joined to each other. Ditto the two layers on the other side. So each "M" no consists of two layers of sheetrock.
To make it even better, you put something called "Green Glue" in between the layers of sheetrock (except that it isn't really glue at all). And if that's STILL not enough you carry on adding layers of sheetrock to each side of the wall, until you get the level of isolation that you want. So each "M" in the MSM equation might be built up from 3 or 4 or 5 or even more layers of sheetrock.
It's pretty simple actually. MSM is all you need. Do it right, and you get really good isolation.
Now, you might think "Well, if that's a GOOD wall, then I can make it even better by putting sheetrock inside the wall as well, on the other sides of those studs, so I get FOUR leaves! That should be fantastic"! And you would be dead wrong. That would make it into a terrible wall. The physics gets a bit complex, but contrary to what seems logical, three-leaf and four-leaf walls are MUCH worse than two-leaf walls at the low end of the spectrum (all other factors being equal).
Three-leaf and four-leaf walls are really bad in the exact area where kick drums and bass guitars live, which you probably already know are the toughest sounds to block anyway. So building a three-leaf or four-leaf wall is going to be worse at the exact place where you need it to be best. Bad idea.
If you want to understand it more, then research this forum. You will find PLENTY of stuff here on 2-leaf and 3-leaf. Two-leaf is the ONLY way to go to build a wall that isolates well at low cost. (The same applies to ceilings).
You already have a concrete floor, right? That's excellent. Putting a wood floor on top of that would probably be a BAD idea, unless all you plan to do is to lay plywood directly on the concrete, and laminate floor directly on the plywood. If you put joists across that concrete and build a normal sub-floor, then you are doing a very silly thing: you are building a drum underneath your room, and setting all your equipment and people on top of the drum head. It will resonate, and cause you endless problems. Stick with bare concrete. or with something that remains firmly attached to the concrete, with no air gap in between.or if the cement foundation with seperate wood floors for each room will suffice.
Yep, that's the best way to do it. But do take into account the room ratio for your control room, You need to find a good ratio, and stick to it carefully.I'm mainly focussing on isolation to get the room built, and then I'll focus on accoustic treatment for sound quality.
Regarding your layout: Your control room seems rather small, and you seem to be wasting space in the entrance airlock. Also, you will lose access to the attic completely, since you'll have to seal the ceiling of your control room air tight, so you might want to figure out some other place in the house where you can put that attic access.
As soon as you get up to speed on SketchUp, post at least a basic (but accurate) layout of what you have, and I'm sure some of the folks here will chip in with suggestions on the best way to use it to do what you want.
- Stuart -
-
5forfighting
- Posts: 14
- Joined: Sat Jan 10, 2009 12:19 am
- Location: Kansas, United States
Re: Newbie here
I really appreciate the help. I still have so much more research to do!
I was basically planning on putting in the snap together wood flooring directly on the cement. I'm just not a big fan of concrete floors. I haven't really made any real decisions on what I'm doing yet. I'm just looking for some ideas to think about while I read through the vast information on here...
I was basically planning on putting in the snap together wood flooring directly on the cement. I'm just not a big fan of concrete floors. I haven't really made any real decisions on what I'm doing yet. I'm just looking for some ideas to think about while I read through the vast information on here...
-
Soundman2020
- Site Admin
- Posts: 11938
- Joined: Thu Aug 21, 2008 10:17 am
- Location: Santiago, Chile
- Contact:
Re: Newbie here
That will work fine. That is usually called "laminate flooring" here. Use the thickest once you can afford. Even better if you glue it to the cement, so that it cannot shake, rattle and roll in time with the music.I was basically planning on putting in the snap together wood flooring directly on the cement.
- Stuart -
-
5forfighting
- Posts: 14
- Joined: Sat Jan 10, 2009 12:19 am
- Location: Kansas, United States
Re: Newbie here
Well, I'm continuing to do research here as well as elsewhere on the web. After visiting numerous different sites, I've still found this one to have the best information! I also went ahead and ordered Rod's book and a couple of others and am axiously anticipating their arrival, hopefully this week. I've also been playing with sketchup and I have a scale drawing of the room itself that I'll try to post later.
I've been trying hard to come up with a layout for my studio. Ideally, I would have a control room, live room, drum room, and a couple of isolation booths. Unfortunately, I am very limited on space (obviously), so I'll have to just make the most of what I have. This is going to have to double as a rehearsal space for my band, so I need as much open area as I can get.
My primary concern is isolation from the rest of the house and the outside world (I'm a bit of a night owl). I thought of just isolating the entire room, and then setting my recorder up in there the way I have it now. However, I would really like to be able to isolate the recorder from the rest of the room, as I am really tired of trying to set levels for the drums with the drummer right next to me.
Now I'm trying to think of a good way to divide the room so that I can maximize the size of my rehearsal space, while still having a usable control room. The location of the door going into the room from the house is giving me fits, as it is located right in the corner which makes it impossible to place a Bass trap there. I'd like to keep the control room under the attic access, as the control room likely won't get loud enough to cause any major problems, provided I get the live room properly isolated.
I know that, given the size of the room, there's no way to get the perfect setup, but does anyone have any workable ideas for a layout? I'm just trying to get an idea for design so that I have a good place to start.
By the way Soundman, I forgot to mention my actual name is Jansen. I really appreciate all of your help. Is there more information that I am needing to provide that I have overlooked?
I've been trying hard to come up with a layout for my studio. Ideally, I would have a control room, live room, drum room, and a couple of isolation booths. Unfortunately, I am very limited on space (obviously), so I'll have to just make the most of what I have. This is going to have to double as a rehearsal space for my band, so I need as much open area as I can get.
My primary concern is isolation from the rest of the house and the outside world (I'm a bit of a night owl). I thought of just isolating the entire room, and then setting my recorder up in there the way I have it now. However, I would really like to be able to isolate the recorder from the rest of the room, as I am really tired of trying to set levels for the drums with the drummer right next to me.
Now I'm trying to think of a good way to divide the room so that I can maximize the size of my rehearsal space, while still having a usable control room. The location of the door going into the room from the house is giving me fits, as it is located right in the corner which makes it impossible to place a Bass trap there. I'd like to keep the control room under the attic access, as the control room likely won't get loud enough to cause any major problems, provided I get the live room properly isolated.
I know that, given the size of the room, there's no way to get the perfect setup, but does anyone have any workable ideas for a layout? I'm just trying to get an idea for design so that I have a good place to start.
By the way Soundman, I forgot to mention my actual name is Jansen. I really appreciate all of your help. Is there more information that I am needing to provide that I have overlooked?
-
Soundman2020
- Site Admin
- Posts: 11938
- Joined: Thu Aug 21, 2008 10:17 am
- Location: Santiago, Chile
- Contact:
Re: Newbie here
Hi Jansen! Good to have a name!
I'd like to see your SketchUp model, to get a better idea of the available space. Also, photos of the current space would help.
- Stuart -
I'd like to see your SketchUp model, to get a better idea of the available space. Also, photos of the current space would help.
- Stuart -
-
lilith_envy
- Senior Member
- Posts: 883
- Joined: Thu Jan 04, 2007 6:37 pm
- Location: Regional Victoria, Aus
- Contact:
Re: Newbie here
hi jansen,
With the available space that you have I would forget the airlock and utilise that space in the control room.
With the available space that you have I would forget the airlock and utilise that space in the control room.
-
5forfighting
- Posts: 14
- Joined: Sat Jan 10, 2009 12:19 am
- Location: Kansas, United States
Re: Newbie here
The only reason I put in the airlock in the diagram above is because I was trying to find a good way to reroute the door, since it's right in the corner, which will interfere with bass trapping. I may just try to rig something up that's easily movable that can go in front of the door.
I haven't ever tried uploading a sketchup file, so I'm trying to figure it out here. Hopefully this works. I'll try to dig out some pics if I can find any that show the room very well. I can't really take any new ones at the moment because I have plastic hanging everywhere from putting in the attic ladder...
I haven't ever tried uploading a sketchup file, so I'm trying to figure it out here. Hopefully this works. I'll try to dig out some pics if I can find any that show the room very well. I can't really take any new ones at the moment because I have plastic hanging everywhere from putting in the attic ladder...
-
NativeLuv17
- Posts: 289
- Joined: Thu Aug 28, 2008 7:33 am
- Location: Eliot, Maine
Re: Newbie here
Wow Stuart, That was the greatest explanation of room acoustics I have ever heard, that actually helps quite a bit!!
Jansen - you said you have a concrete floor but are not a fan of it right? There's a great photo somewhere in this forum (I know that doesn't help much) with a concrete floor that has been cut to make it look like tiling, and then stained. It's worth taking a look, I think it looks really nice. I'll see if I can find the post somewhere, I believe it was one of the studios John built.
Jansen - you said you have a concrete floor but are not a fan of it right? There's a great photo somewhere in this forum (I know that doesn't help much) with a concrete floor that has been cut to make it look like tiling, and then stained. It's worth taking a look, I think it looks really nice. I'll see if I can find the post somewhere, I believe it was one of the studios John built.
-
5forfighting
- Posts: 14
- Joined: Sat Jan 10, 2009 12:19 am
- Location: Kansas, United States
Re: Newbie here
I haven't torn the carpet out yet, so I'm not 100% sure what the condition of the concrete floor is. That's why I'm leaning toward gluing down a wood laminate. Plus, the rest of the house has hardwood floors, and I like the look. I'll just have to see what comes up in the future. I'm not quite ready to build yet, so I'm just trying to get a design in mind so that I can get a plan laid out. I figure it's better to plan ahead than wait until the last minute and have to put everything off because of a design flaw!
-
5forfighting
- Posts: 14
- Joined: Sat Jan 10, 2009 12:19 am
- Location: Kansas, United States
Re: Newbie here
Well I've purchased Rod's book, as well as a couple of others, and have been reading all over this forum with great interest. I've already learned ten times as much as I "thought" I knew before, and I've barely scratched the surface! With this in mind, I've decided to restate my objectives, hopefully in a more clear manner than before, and applying what I've learned so far.
I've already given the dimensions of my room above, so that's what I have to work with. There is no possible way to expand in any direction (I've already look into that). My primary focus is isolation from the rest of the house as well as outside. Secondary is room accoustics for the best quality recordings I am capable of, given my lack of resources. My budget is very difficult to put a number on. Basically, I don't have a lot of money, but I generally manage to find a way to do what I want. Due to this, the project may take a long time to finish as I'll be doing what I can, when I can. Overall, I just don't want to spend a ton of extra money for a minor improvement. I plan to do everything myself, with the exception of the electrical, as electricity scares the hell out of me!
My plans for the studio are to use it as a rehearsal space for my band(s). Therefore, I want to keep as much floor space as possible in the tracking room. I also want the tracking room to be isolated from the control room, so that I can accurately set levels, etc. Given the small space I am working with, I know that my control room is going to be terribly undersized, but I'm going to do what I can treatment-wise, to make the best of a bad situation.
I would also like to use the room for recording my own projects, as well as doing super low-cost (free) demos for younger bands who can't afford studio time. Most of the local studios here cost a lot of money and are little more than a corner of someone's basement with some carpet hung on the walls. They get decent sounding demos, but generally for a pretty high price. There are some nicer studios here, but they cost far more. As far as sound goes, I know I'm not going to be able to get major label quality recordings, but I'd at least like to be able to get something that sounds good and where you can clearly hear everything. I've done some analog 4 track recordings with room mics, but the bleed over between the drums and guitars caused too much interference with the mics, so I ended up having to record each instrument seperately. I'm hoping to find a way to treat the tracking room to minimize this problem, as I don't have room for seperate isolation booths.
A friend of mine has a house that used to be a 19th Century two-room school house. (It's an awesome house by the way!) In the one large room that he used for a band room, he built a room within a room type studio. The rough dimensions are 12X16X8 (Tracking Room), and 8X10X8 (Control Room) Given his location, he didn't worry too much about isolation, as it wasn't needed. It does good enough blocking the high frequencies to allow conversation without having to scream. Accoustically, he covered all walls with Auralex, giving both rooms a totally dead sound. It works great for live playing, because you can hear each instrument clearly without all of the bouncing sound waves (namely, crash cymbals). However, recording-wise, it took some work to get adjusted to setting the levels so as not to over compensate for having a dead room. He now gets some pretty good recordings out of there. However, in my case, I would prefer to not have a completely dead room, because I have a tendency to way over analyze everything and I would have too much difficulty making the adjustment.
For monitors, I'm using a pair of active Fostex (possibly PM0.4). I had initially though of soffit mounting them but I've decided to instead keep them as nearfields. My reason for this is that they are rear cooled, as well as the power and gain controls being on the back. Also, as my control room is going to be so small, I don't think soffit mounted speakers would be of much benefit to me.
As regards the attic access, moving it isn't an option... I already tried that and there's no place else in the house that will work. As I won't need complete isolation from the control room to the rest of the house due to the lower volume I'll be using in mixing/mastering, I'd like to have the control room in that section. While it's not ideal, I can at least make the best of it by being able to store mic stands, etc. in the attic. The main problem I have with that end of the room is a door right in the corner that cannot be relocated.
I also want the tracking and control rooms to look nice and professional... Not for any commercial reasons, as this won't be a money-making venture for me, but from a strictly asthetic point of view. I want to have a nice atmosphere for recording and, if I am recording a demo for another band, I want them to have the feeling that they are in a real studio, not just some thrown together room.
I realize that I have much to learn and that all of my ideas may not even be possible. But I would appreciate any ideas that anyone can give me to at least get as close as I can. I really appreciate the help I've received so far, and I am further appreciative of the fact that this site exists in the first place, with so many knowledgable and experienced individuals sharing their time to help those of us who aren't sure where to start!
I've already given the dimensions of my room above, so that's what I have to work with. There is no possible way to expand in any direction (I've already look into that). My primary focus is isolation from the rest of the house as well as outside. Secondary is room accoustics for the best quality recordings I am capable of, given my lack of resources. My budget is very difficult to put a number on. Basically, I don't have a lot of money, but I generally manage to find a way to do what I want. Due to this, the project may take a long time to finish as I'll be doing what I can, when I can. Overall, I just don't want to spend a ton of extra money for a minor improvement. I plan to do everything myself, with the exception of the electrical, as electricity scares the hell out of me!
My plans for the studio are to use it as a rehearsal space for my band(s). Therefore, I want to keep as much floor space as possible in the tracking room. I also want the tracking room to be isolated from the control room, so that I can accurately set levels, etc. Given the small space I am working with, I know that my control room is going to be terribly undersized, but I'm going to do what I can treatment-wise, to make the best of a bad situation.
I would also like to use the room for recording my own projects, as well as doing super low-cost (free) demos for younger bands who can't afford studio time. Most of the local studios here cost a lot of money and are little more than a corner of someone's basement with some carpet hung on the walls. They get decent sounding demos, but generally for a pretty high price. There are some nicer studios here, but they cost far more. As far as sound goes, I know I'm not going to be able to get major label quality recordings, but I'd at least like to be able to get something that sounds good and where you can clearly hear everything. I've done some analog 4 track recordings with room mics, but the bleed over between the drums and guitars caused too much interference with the mics, so I ended up having to record each instrument seperately. I'm hoping to find a way to treat the tracking room to minimize this problem, as I don't have room for seperate isolation booths.
A friend of mine has a house that used to be a 19th Century two-room school house. (It's an awesome house by the way!) In the one large room that he used for a band room, he built a room within a room type studio. The rough dimensions are 12X16X8 (Tracking Room), and 8X10X8 (Control Room) Given his location, he didn't worry too much about isolation, as it wasn't needed. It does good enough blocking the high frequencies to allow conversation without having to scream. Accoustically, he covered all walls with Auralex, giving both rooms a totally dead sound. It works great for live playing, because you can hear each instrument clearly without all of the bouncing sound waves (namely, crash cymbals). However, recording-wise, it took some work to get adjusted to setting the levels so as not to over compensate for having a dead room. He now gets some pretty good recordings out of there. However, in my case, I would prefer to not have a completely dead room, because I have a tendency to way over analyze everything and I would have too much difficulty making the adjustment.
For monitors, I'm using a pair of active Fostex (possibly PM0.4). I had initially though of soffit mounting them but I've decided to instead keep them as nearfields. My reason for this is that they are rear cooled, as well as the power and gain controls being on the back. Also, as my control room is going to be so small, I don't think soffit mounted speakers would be of much benefit to me.
As regards the attic access, moving it isn't an option... I already tried that and there's no place else in the house that will work. As I won't need complete isolation from the control room to the rest of the house due to the lower volume I'll be using in mixing/mastering, I'd like to have the control room in that section. While it's not ideal, I can at least make the best of it by being able to store mic stands, etc. in the attic. The main problem I have with that end of the room is a door right in the corner that cannot be relocated.
I also want the tracking and control rooms to look nice and professional... Not for any commercial reasons, as this won't be a money-making venture for me, but from a strictly asthetic point of view. I want to have a nice atmosphere for recording and, if I am recording a demo for another band, I want them to have the feeling that they are in a real studio, not just some thrown together room.
I realize that I have much to learn and that all of my ideas may not even be possible. But I would appreciate any ideas that anyone can give me to at least get as close as I can. I really appreciate the help I've received so far, and I am further appreciative of the fact that this site exists in the first place, with so many knowledgable and experienced individuals sharing their time to help those of us who aren't sure where to start!
-
5forfighting
- Posts: 14
- Joined: Sat Jan 10, 2009 12:19 am
- Location: Kansas, United States
Re: Newbie here
I have a couple of new questions about 2-leaf, 3-leaf, etc. that I'm not finding the answers to. If they've already been answered elsewhere, can someone point me in the right direction?
The first is this... The following link goes to a thread showing the STC of various wall constructions:
http://www.johnlsayers.com/phpBB2/viewt ... 86&start=0
(I'm going to save the picture when I get home and try to post it directly here so no one has to jump back and fourth between threads.)
I understand that you actually get a lower STC if you add more than two leaves. However, in the examples I've seen, this is in reference to an additional leaf being added inside a two leaf wall, thereby effectively cutting the air gap in half. My question is, does the 3+ leaf wall rule still apply if you're placing the additional leaf outside the two leaf wall? For example, if you have a hollow cinder block wall, that basically would be considered a two leaf wall, with both leaves coupled, correct? Now, if you haven't the ability to fill the holes in the cinderblocks, wouldn't you still improve your isolation by building a seperate wall frame in front of it with drywall on one side?
My second question is in regard to ceilings...
http://www.johnlsayers.com/phpBB2/viewt ... ing#p83552
I have a set-up like this, where the slope of my roof goes right over the ceiling in my studio. If I build a secondary ceiling in my studio, that will technically create a third leaf (I read in another thread that it doesn't matter that the attic isn't air-tight). So, if I just beef up my current ceiling, how do I isolate sound from carrying through the attic to the rest of the house, and through the attic vents outside?
The first is this... The following link goes to a thread showing the STC of various wall constructions:
http://www.johnlsayers.com/phpBB2/viewt ... 86&start=0
(I'm going to save the picture when I get home and try to post it directly here so no one has to jump back and fourth between threads.)
I understand that you actually get a lower STC if you add more than two leaves. However, in the examples I've seen, this is in reference to an additional leaf being added inside a two leaf wall, thereby effectively cutting the air gap in half. My question is, does the 3+ leaf wall rule still apply if you're placing the additional leaf outside the two leaf wall? For example, if you have a hollow cinder block wall, that basically would be considered a two leaf wall, with both leaves coupled, correct? Now, if you haven't the ability to fill the holes in the cinderblocks, wouldn't you still improve your isolation by building a seperate wall frame in front of it with drywall on one side?
My second question is in regard to ceilings...
http://www.johnlsayers.com/phpBB2/viewt ... ing#p83552
I have a set-up like this, where the slope of my roof goes right over the ceiling in my studio. If I build a secondary ceiling in my studio, that will technically create a third leaf (I read in another thread that it doesn't matter that the attic isn't air-tight). So, if I just beef up my current ceiling, how do I isolate sound from carrying through the attic to the rest of the house, and through the attic vents outside?
-
xSpace
- Moderator
- Posts: 3823
- Joined: Sat Aug 25, 2007 10:54 am
- Location: Exit 4, Alabama
- Contact:
Re: Newbie here
"For example, if you have a hollow cinder block wall, that basically would be considered a two leaf wall"
Actually it is one leaf. I know it seems like it should be 2 leaves, but it isn't.
Let me preach on...
Each individual block has a connection from front to rear and side to side. Basically it is short circuiting from the start :0
And if that wasn't enough, the core of the block effectively is breaking up the air space.
It just doesn't have what it takes to be a two leaf, e.g., decoupled and one air space.
Actually it is one leaf. I know it seems like it should be 2 leaves, but it isn't.
Let me preach on...
Each individual block has a connection from front to rear and side to side. Basically it is short circuiting from the start :0
And if that wasn't enough, the core of the block effectively is breaking up the air space.
It just doesn't have what it takes to be a two leaf, e.g., decoupled and one air space.